Locking Assemblies RfN 7013.1 | RINGFEDER®

These flange type units fix the hub positively against their extended flange preventing axial movement during tightening. Applied wherever self-centering action and good concentricity of mounted components are essential and hubs with straight-thru bores are used. Available sizes: Metric series shafts from 20 mm to 150 mm dia. and Inch series for shafts from 1” to 4” diameter.

This series is also available in true inch sizes.

Technical Data & CAD Models

Download of CAD data is available to you after login with your personal Customer or Distributor Account. You do not have an account yet? Register here without any costs or obligations.

CAD
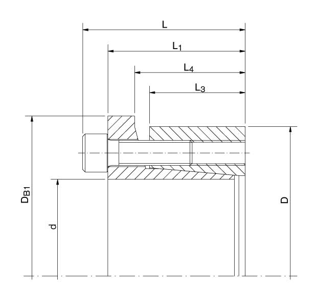
d
mm
D
mm
DB1
mm
L
mm
L1
mm
L4
mm
T
Nm
pW
N/mm2
pN
N/mm2
TA
Nm
DN min bei Rp0,2 400 N/mm2
mm
Tmax
Nm
19 47 53 37 31 25,7 285 300 90 17 57 310
20 47 53 37 31 25,7 300 290 90 17 57 330
22 47 53 37 31 25,7 330 260 90 17 57 360
24 50 56 37 31 25,7 420 300 110 17 63 460
25 50 56 37 31 25,7 440 290 110 17 63 480
28 55 62 37 31 25,7 490 260 100 17 68 530
30 55 62 37 31 25,7 530 240 100 17 68 580
32 60 68 37 31 25,7 740 270 110 17 75 810
35 60 68 37 31 25,7 810 250 110 17 75 890
38 65 73 37 31 25,7 890 230 100 17 80 970
40 65 73 37 31 25,7 940 220 100 17 80 1030
42 75 83 46 38 30,3 1730 300 130 41 100 1900
45 75 83 46 38 30,3 1860 280 130 41 100 2040
48 80 88 46 38 30,3 1980 270 130 41 105 2170
50 80 88 46 38 30,3 2070 260 130 41 105 2270
55 85 95 46 38 30,3 2540 270 140 41 114 2790
60 90 100 46 38 30,3 2770 250 130 41 118 3040
65 95 105 46 38 30,3 3580 260 140 41 128 3930
70 110 120 60 50 40,4 5100 240 130 83 144 5610
75 115 125 60 50 40,4 5460 230 120 83 148 6000
80 120 130 60 50 40,4 5850 210 110 83 152 6430
85 125 135 60 50 40,4 7450 230 130 83 164 8190
90 130 140 60 50 40,4 7900 220 120 83 168 8690
95 135 145 60 50 40,4 9900 260 150 83 185 10890
100 145 155 68 58 47,8 11000 190 110 83 184 12100
110 155 165 68 58 47,8 12100 180 110 83 194 13310
120 165 175 68 58 47,8 15700 190 120 83 212 17270
130 180 190 77 65 52,4 20700 190 120 145 231 22770
140 190 200 77 65 52,4 22500 180 110 145 241 24750
150 200 210 77 65 52,4 28500 200 130 145 262 31350
CAD d
inch
D
inch
DB1
inch
L
inch
L1
inch
L4
inch
T
ft-lbs
pW
psi
pN
psi
TA
ft-lbs
DN min bei Rp0,2 400 N/mm2
inch
  1 1.969 2.205 1.457 1.220 1.012 323 40170 15070 13 2.398
  1 3/16 2.165 2.441 1.457 1.220 1.012 385 33800 13650 13 2.587
  1 1/4 2.362 2.677 1.457 1.220 1.012 531 38560 15070 13 2.876
  1 3/8 2.362 2.677 1.457 1.220 1.012 585 35055 15070 13 2.876
  1 7/16 2.559 2.874 1.457 1.220 1.012 620 33495 13935 13 3.069
  1 1/2 2.559 2.874 1.457 1.220 1.012 647 32100 13935 13 3.069
  1 5/8 2.953 3.268 1.811 1.496 1.193 1234 43870 19055 30 3.796
  1 3/4 2.953 3.268 1.811 1.496 1.193 1329 40740 19055 30 3.796
  1 7/8 3.150 3.465 1.811 1.496 1.193 1426 38070 17915 30 3.986
  1 15/16 3.150 3.465 1.811 1.496 1.193 1473 36840 17915 30 3.986
  2 3.150 3.465 1.811 1.496 1.193 1521 35690 17915 30 3.986
  2 1/8 3.346 3.740 1.811 1.496 1.193 1803 39125 19625 30 4.335
  2 3/16 3.346 3.740 1.811 1.496 1.193 1856 38005 19625 30 4.335
  2 1/4 3.543 3.937 1.811 1.496 1.193 1908 36875 18485 30 4.518
  2 3/8 3.543 3.937 1.811 1.496 1.193 2014 34935 18485 30 4.518
  2 7/16 3.740 4.134 1.811 1.496 1.193 2466 38965 20050 30 4.873
  2 1/2 3.740 4.134 1.811 1.496 1.193 2530 37990 20050 30 4.873
  2 9/16 3.740 4.134 1.811 1.496 1.193 2593 37065 20050 30 4.873
  2 3/4 4.331 4.724 2.362 1.969 1.591 3680 34770 18200 61 5.502
  2 7/8 4.528 4.921 2.362 1.969 1.591 3845 33300 16920 61 5.653
  2 15/16 4.528 4.921 2.362 1.969 1.591 3929 32590 16920 61 5.653
  3 4.528 4.921 2.362 1.969 1.591 4012 31910 16920 61 5.653
  3 3/8 4.921 5.315 2.362 1.969 1.591 5434 32430 18345 61 6.264
  3 7/16 5.118 5.512 2.362 1.969 1.591 5543 31810 17630 61 6.451
  3 1/2 5.118 5.512 2.362 1.969 1.591 5644 31240 17630 61 6.451
  3 3/4 5.315 5.709 2.362 1.969 1.591 7180 36450 21190 61 7.036
  3 15/16 5.709 6.102 2.677 2.283 1.882 7957 27300 16210 61 7.059
  4 5.709 6.102 2.677 2.283 1.882 8083 26870 16210 61 7.059

Product Characteristics

  • Excellent concentricity and very easy to dismantle – these Locking Assemblies provide particularly good concentricity between the clamped parts. The flange is reinforced at the critical point, preventing bending or lifting of the inner ring during assembly and thereby ensuring easy dismantling.
  • High rotation speed – the dimensional accuracy of the RfN 7013 Locking Assemblies allows their use in applications with higher rotational speeds.
  • High radial loads – the material strength of the RfN 7013 Locking Assemblies makes them especially suitable for applications with high radial loads.
  • Axial hub positioning – the increased outer diameter of the flange prevents the axial movement of the hub during assembly, and improves the run-out ability of the Locking Assembly.
  • High torque – the increased number of clamping screws ensures the same transmission values as the RfN 7013.0.

Mounting of Locking Assembly

The Locking Assemblies are supplied slightly oiled and ready-to-use. The values for T, Fax, pW and pN apply to Locking Assemblies in delivery condition.

Surface finishes

For shafts and hub bores Ra = 1,6 μm

Tolerances

We recommend the following mounting tolerances

Shaft: h8; Hub: H8

Arrangement of several Locking Assemblies RfN 7013.1

Arrangement only possible from 2 sides. If several Locking Assemblies are used to increase the transmission values the clamping systematization has to be considered.

Change of screw tightening torques

A change of the TA-values given in the above table is not admissible.

RINGFEDER® Locking Assemblies – How to Use Them?

Learn more about application and functionality of our premium-quality, high-performance RINGFEDER® Locking Assemblies in our short video.

Downloads

Product Paper RINGFEDER® Locking Assemblies

Product Paper RINGFEDER® Locking Assemblies

Tech Paper Locking Assemblies RINGFEDER® RfN 7013.1

Tech Paper Locking Assemblies RINGFEDER® RfN 7013.1

Instruction Manual Locking Assemblies RINGFEDER® RfN 7013.0, RfN 7013.1

Instruction Manual Locking Assemblies RINGFEDER® RfN 7013.0, RfN 7013.1

Further downloads including certificates, instruction manuals and product images are available to you in our Download Center:

Downloads

Your Contact to Us

You like to receive an offer, have specific questions, require technical support or you are interested in a customized solution? Our experts in Engineering and Sales are more than happy to assist you. We look forward to your inquiry! Because excellent solutions always start with excellent guidance.

Contact us quickly and easily via our request form, by e-mail or telephone, or also using the "Need Help?" feature at the bottom right of this site.

Directly Contact Our Experts in Engineering & Sales | RINGFEDER®