Locking Assemblies Stainless Steel RfN 7012 | RINGFEDER®

Identical in design and function to the traditional 7012 device, this unit is made of stainless steel for applications requiring rust free installation. Torque capacity is somewhat reduced due to the nature of stainless steel.

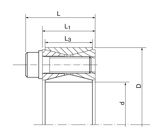
Technical Data & CAD Models

Download of CAD data is available to you after login with your personal Customer or Distributor Account. You do not have an account yet? Register here without any costs or obligations.

CAD
d
mm
D
mm
L
mm
L1
mm
L3
mm
T
Nm
pW
N/mm2
pN
N/mm2
TA
Nm
DN min bei Rp0,2 400 N/mm2
mm
Tmax
Nm
19 47 27,5 20 17 252 218 88 14 55 269
20 47 27,5 20 17 265 206 88 14 55 320
22 47 27,5 20 17 289 187 88 14 55 350
24 50 27,5 20 17 353 191 92 14 58 428
25 50 27,5 20 17 367 183 92 14 61 445
28 55 27,5 20 17 408 162 83 14 63 495
30 55 27,5 20 17 435 151 83 14 63 528
32 60 27,5 20 17 617 188 100 14 71 748
35 60 27,5 20 17 671 171 100 14 71 815
38 65 27,5 20 17 906 196 114 14 78 1100
40 65 27,5 20 17 950 185 114 14 78 1153
42 75 33,5 24 20 1509 227 127 35 92 1767
45 75 33,5 24 20 1610 211 127 35 92 1885
48 80 33,5 24 20 1710 197 118 35 97 2003
50 80 33,5 24 20 1777 189 118 35 97 2081
55 85 33,5 24 20 2267 199 129 35 104 2655
60 90 33,5 24 20 2460 181 121 35 109 2880
65 95 33,5 24 20 3030 190 130 35 117 3550
70 110 39,5 28 24 4581 207 132 70 135 5431
75 115 39,5 28 24 4887 192 125 70 140 5795
80 120 39,5 28 24 5192 179 120 70 145 6155
85 125 39,5 28 24 6281 192 131 70 153 7446
90 130 39,5 28 24 6627 181 125 70 158 7856
95 135 39,5 28 24 7843 192 135 70 167 7856
100 145 47 33 26 9591 196 135 125 179 11125
110 155 47 33 26 10488 177 126 125 189 12165
120 165 47 33 26 13004 184 134 125 203 16947
130 180 52 38 34 17522 162 117 125 216 20325
140 190 52 38 34 20661 164 121 125 229 23966
150 200 52 38 34 24046 167 125 125 243 27892
CAD d
inch
D
inch
L
inch
L1
inch
L3
inch
T
ft-lbs
pW
psi
pN
psi
TA
ft-lbs
DN min bei Rp0,2 400 N/mm2
inch
Tmax
ft-lbs
  0.748 1.850 1.083 0.787 0.669 186 31594 12754 10 2.165 198
  0.787 1.850 1.083 0.787 0.669 195 29855 12754 10 2.165 236
  0.866 1.850 1.083 0.787 0.669 213 27101 12754 10 2.165 258
  0.945 1.969 1.083 0.787 0.669 260 27681 13333 10 2.283 316
  0.984 1.969 1.083 0.787 0.669 271 26522 13333 10 2.402 328
  1.102 2.165 1.083 0.787 0.669 301 23478 12029 10 2.480 365
  1.181 2.165 1.083 0.787 0.669 321 21884 12029 10 2.480 389
  1.260 2.362 1.083 0.787 0.669 455 27246 14493 10 2.795 552
  1.378 2.362 1.083 0.787 0.669 495 24783 14493 10 2.795 601
  1.496 2.559 1.083 0.787 0.669 668 28406 16522 10 3.071 811
  1.575 2.559 1.083 0.787 0.669 701 26812 16522 10 3.071 850
  1.654 2.953 1.319 0.945 0.787 1113 32899 18406 26 3.622 1303
  1.772 2.953 1.319 0.945 0.787 1187 30580 18406 26 3.622 1390
  1.890 3.150 1.319 0.945 0.787 1261 28551 17101 26 3.819 1477
  1.969 3.150 1.319 0.945 0.787 1311 27391 17101 26 3.819 1535
  2.165 3.346 1.319 0.945 0.787 1672 28841 18696 26 4.094 1958
  2.362 3.543 1.319 0.945 0.787 1814 26232 17536 26 4.291 2124
  2.559 3.740 1.319 0.945 0.787 2235 27536 18841 26 4.606 2618
  2.756 4.331 1.555 1.102 0.945 3379 30000 19130 52 5.315 4006
  2.953 4.528 1.555 1.102 0.945 3605 27826 18116 52 5.512 4274
  3.150 4.724 1.555 1.102 0.945 3829 25942 17391 52 5.709 4540
  3.346 4.921 1.555 1.102 0.945 4633 27826 18986 52 6.024 5492
  3.543 5.118 1.555 1.102 0.945 4888 26232 18116 52 6.220 5794
  3.740 5.315 1.555 1.102 0.945 5785 27826 19565 52 6.575 5794
  3.937 5.709 1.850 1.299 1.024 7074 28406 19565 92 7.047 8205
  4.331 6.102 1.850 1.299 1.024 7736 25652 18261 92 7.441 8973
  4.724 6.496 1.850 1.299 1.024 9591 26667 19420 92 7.992 12500
  5.118 7.087 2.047 1.496 1.339 12924 23478 16957 92 8.504 14991
  5.512 7.480 2.047 1.496 1.339 15239 23768 17536 92 9.016 17677
  5.906 7.874 2.047 1.496 1.339 17736 24203 18116 92 9.567 20572

Product Characteristics

  • Slimmest design - especially suitable for applications where space is limited. The Locking Assembly RfN 7012 stainless compensates small tolerance deviations and compensates small mounting errors.
  • Large transmittable forces and moments – several Locking Assemblies RfN 7012 stainless can be placed one behind the other. The transmissible torque and axial forces are added - please take in this respect consulting with our technical experts.
  • Easy installation – in comparison to crosspress fits temperature treatments and fitting are eliminated. Locking Assemblies RfN 7012 stainless steel can cover a big fitting clearance.
  • Low risk to contamination – during the tightening process the functional surfaces of the device and connection are pressed together generating a surface pressure that does not allow the ingress of contamination.
  • Adjustable transmission values – the locking screw torque can be changed giving a corresponding change in transmission values. RfN 7012 stainless Locking Assemblies can be tightened and released repeatedly.

Example applications

  • chain wheels
  • levers
  • pulleys
  • slip-on gear mechanisms
  • belt drums
  • running wheels
  • cable sheaves

Mounting of Locking Assembly

The Locking Assemblies are supplied slightly oiled and ready-to-use. The values for T, Fax, pW and pN apply to Locking Assemblies in delivery condition.

Tolerances

We recommend the following mounting tolerances

Shaft: k9-h9; Hub: N9-H9
Max. admissible Shaft: k11-h11; Hub: N11-H11

To avoid excessive deformations of the relatively thickwalled thrust rings, the Locking Assembly should be located as symmetrically as possible between shaft and hub bore. If the shaft is smaller than nominal d, the bore should exceed nominal D to the same extent and vice versa. The concentricity quality is determined by the direct centering between shaft and hub.

Arrangement of several Locking Assemblies RfN 7012 stainless

If several Locking Assemblies are to be installed the transmission values of the table can be added when the Locking Assemblies are located within a distance of 4·L.

Change of screw tightening torques

The Locking Assemblies are generally equipped with A2-70 grade screws. A reduction of the screw tightening torque is possible. (Please contact our specialists for assistance).

Auxiliary threads

To facilitate removal, the front thrust rings have auxiliary threads.

RINGFEDER® Locking Assemblies – How to Use Them?

Learn more about application and functionality of our premium-quality, high-performance RINGFEDER® Locking Assemblies in our short video.

Downloads

Product Paper RINGFEDER® Locking Assemblies

Product Paper RINGFEDER® Locking Assemblies

Tech Paper Locking Assemblies RINGFEDER® RfN 7012 stainless steel

Tech Paper Locking Assemblies RINGFEDER® RfN 7012 stainless steel

Instruction Manual Locking Assemblies RINGFEDER® RfN 7012, RfN 7012.2

Instruction Manual Locking Assemblies RINGFEDER® RfN 7012, RfN 7012.2

Further downloads including certificates, instruction manuals and product images are available to you in our Download Center:

Downloads

Your Contact to Us

You like to receive an offer, have specific questions, require technical support or you are interested in a customized solution? Our experts in Engineering and Sales are more than happy to assist you. We look forward to your inquiry! Because excellent solutions always start with excellent guidance.

Contact us quickly and easily via our request form, by e-mail or telephone, or also using the "Need Help?" feature at the bottom right of this site.

Directly Contact Our Experts in Engineering & Sales | RINGFEDER®